효당하우징 집짓기

효당하우징과 함께하면 행복한 건축이 됩니다.

설계

인기

춘천
2019-02-15 21:01
작성자 : 마스터 빌더
조회 : 6553
첨부파일 : 11개
건평 : 32평
외장재 : 벽체: 적벽돌/ 지붕 : 점토기와 프랑스산
내장재 : 찜질방 : 황토벽돌위 한지도배/ 바닥: 황토석 /내벽, 천정: 실크 벽지마감 / 바닥: 강마루
단열 : 유리섬유 벽:R21, 지붕 R32
난방 : 기름보일러 18000
공사금액 : 1억5천
창호 : 엘지 하이샤시 이중창 22mm 로이

 

전원 주택을 설계 할 때면  많은 분들이 찜질방을 생각합니다.
 
치유와 피로회복의 목적이 많지만, 어린시절 추억을 회상하면 찜질방을 원하는 분들이 많습니다. 시골이 구들은 아랫묵은 뜨겁고 윗묵은 차갑고 아침이넘 구들이 씩어서 냉방과

같은 방에서 잠을 잔 경험이 있을 것입니다.

하지만, 요즘 찜질방은 구들도 과학적으로 설치 하여, 아래묵, 위묵이 없이 균일한 온도를 유지 합니다.  장작도 많이 필요하지 않고,  소량의 장작으로 3일씩 난방을 유지하는

기술이 적요되어  사용하기 매우 편리합니다.

그래서 많은 분들이  전원주택을 지을때 찜질방을 선호 합니다.

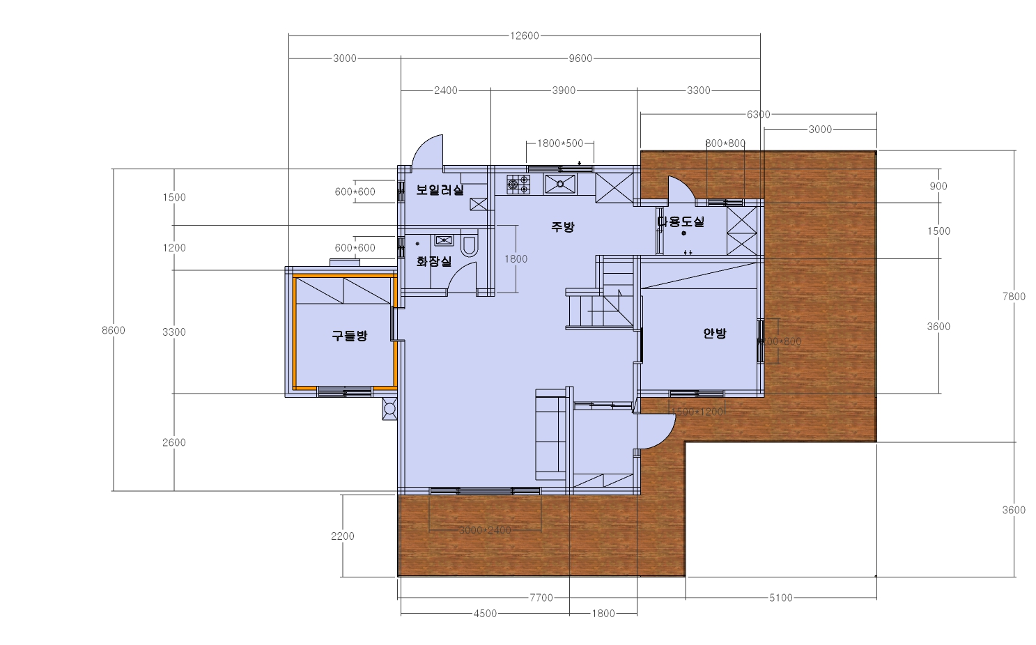
1층평면도

2층평면도 
 

입면도 

 



입면도


입면도




입면도




내부공사




완공후 사진