효당하우징 집짓기

효당하우징과 함께하면 행복한 건축이 됩니다.

설계

기획

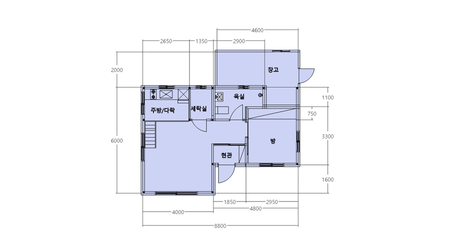
기획특가 C모델
2018-10-15 21:14
작성자 : 관리자
조회 : 4728
첨부파일 : 8개