효당하우징 집짓기

효당하우징과 함께하면 행복한 건축이 됩니다.

설계

인기

명당
2019-02-13 19:07
작성자 : 마스터 빌더
조회 : 8477
첨부파일 : 8개
건평 : 42평
외장재 : 벽:벽돌 지붕:아스팔트 슁글
내장재 : 천장,벽:실크도배 바닥:강화마루 거실천장:원목 서가래 보
단열 : 벽:유리섬유 R21 천장:유리섬유R32
난방 : 기름보일러
공사금액 : 1억8천
창호 : 창 드리움 독일식 시스템3중창 도어 abs
               
                       완공된 모습

                        
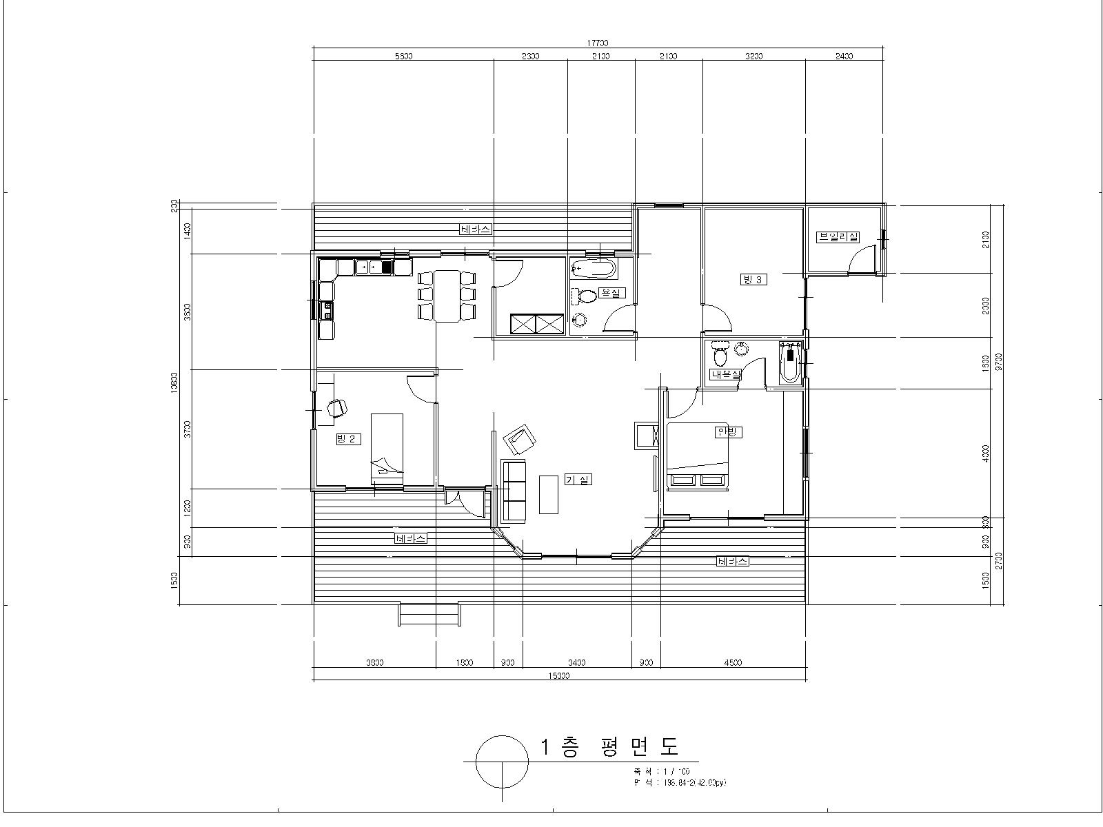
42평형 단독주택으로    방3개와 5평 다락구조   데크와 다락은 서비스

                                   
 







                         42평 평면도( 다락 5평 서비스)








 






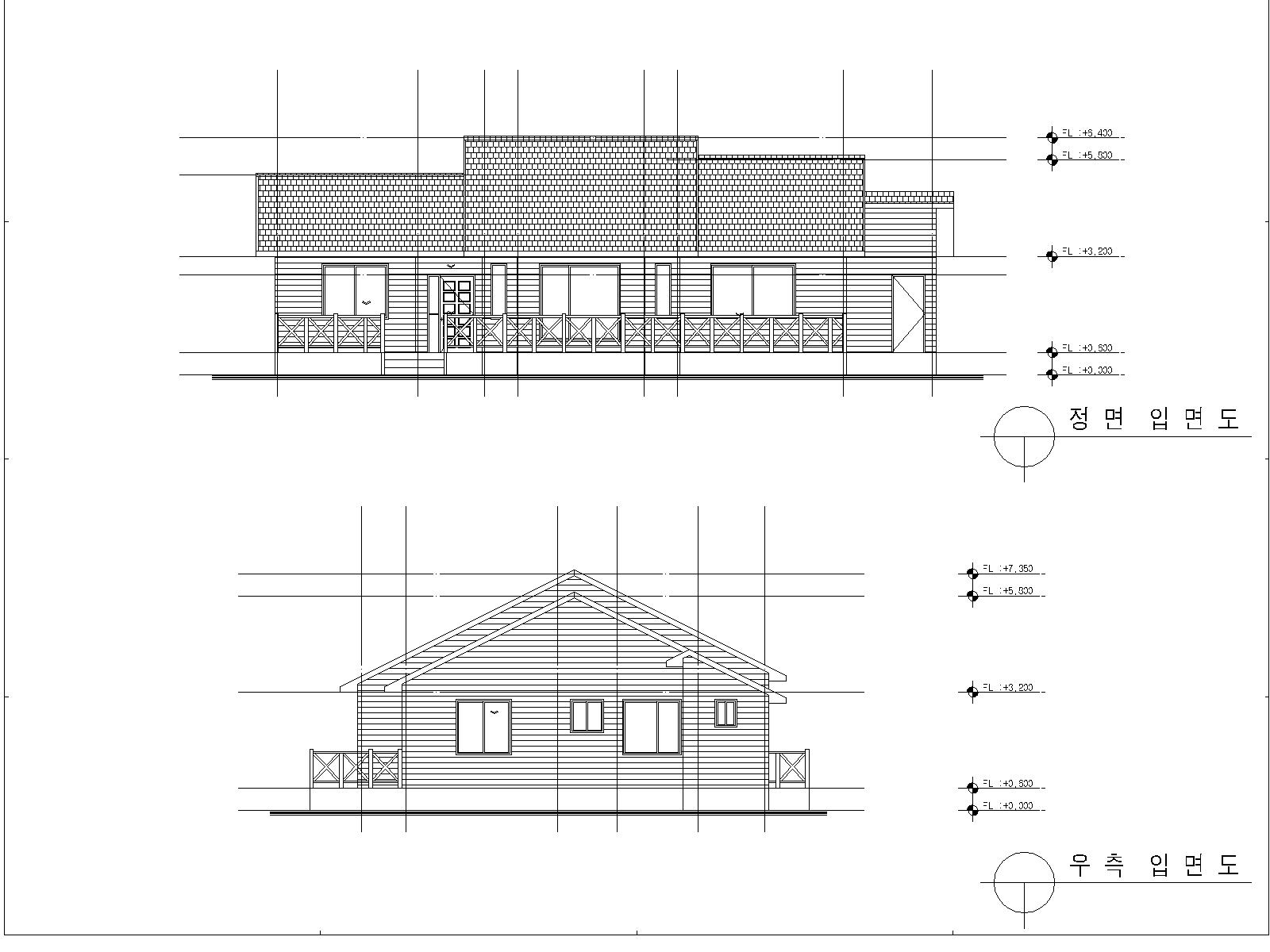
입면도











                      스틸하우스  골조공사

                      
스틸하우스 골조 자재는 2*4 공법으로  대풍과 지진에 대비하여 탄생한 건축자재로   건식공법 주택으로 튼튼한 집을 짓기에 적합하다
             


 

 

 


                      벽돌쌓기
                       
벽돌은 100년이 지나도 변함이 없으며, 친숙한  건축재료로   고급스럽고  멋스러운  주택의 외장재로 인기가 높다. 
   
                                    지붕 후레싱과 물받이는 동으로 시간이 지나면  산화되어 기품있는 색상으로 변하는 소재로  고급 주택에 주로 사용된다.

 

 

  



                        내부 인테리어

                       
거실천정은   일본산 편백루바와    300*300  미송원목보 , 150*100  미송 원목 서가래를 설치  한옥의 웅장한 분위기와 친환경적인  원목소재로   
                                    건강까지 생각한 내장마감재




 

                            안방에는 등박스를 설치 하여 조명의 밝기를 여러톤으로 조정하여 분위기를 연출할 수 있게


 

  • 이전 글
  • 다음 글
    다음글이 없습니다.