효당하우징 집짓기

효당하우징과 함께하면 행복한 건축이 됩니다.

설계

인기

녹수
2019-02-15 18:00
작성자 : 마스터 빌더
조회 : 8688
첨부파일 : 15개
건평 : 30평
외장재 : 외벽: 세라라믹 사이딩 16mm / 지붕 : 징크 / 데크 : 25*140 방부목
내장재 : 거실 낙엽송 루바와 150*100 원목 서가래 이용한 천정/ 벽 : 석고위 실크도배 / 강마루
단열 : 유리섬유 벽:R21, 지붕 R32
난방 : 경동 기름 보일러 1800
공사금액 : 1억2천
창호 : 미국식 3중유리 시스템창

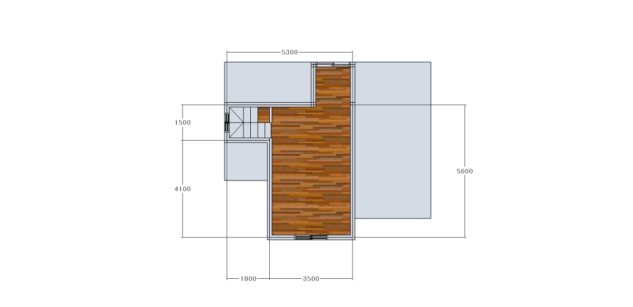
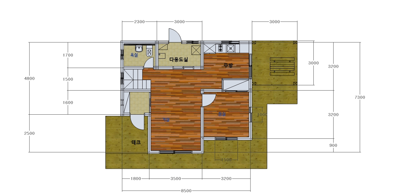
평면도


2층 평면도




입면도


입면도


입면도


창호공사


단열공사

내부공사

완공 후 사진