효당하우징 집짓기

효당하우징과 함께하면 행복한 건축이 됩니다.

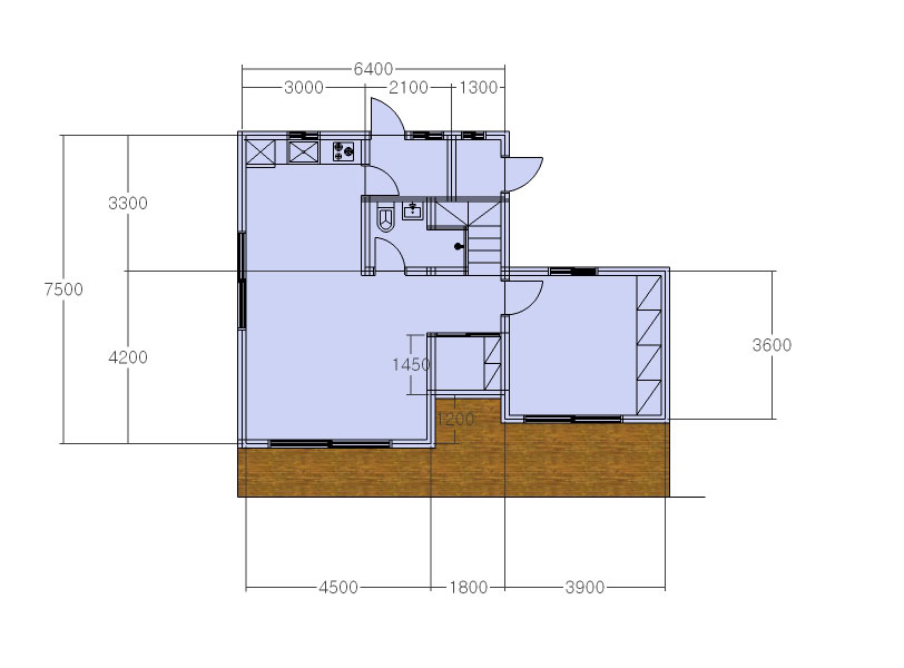
설계

기획

기획 특가 A모델
2018-10-15 20:43
작성자 : 관리자
조회 : 4465
첨부파일 : 10개