효당하우징 집짓기

효당하우징과 함께하면 행복한 건축이 됩니다.

설계

기획

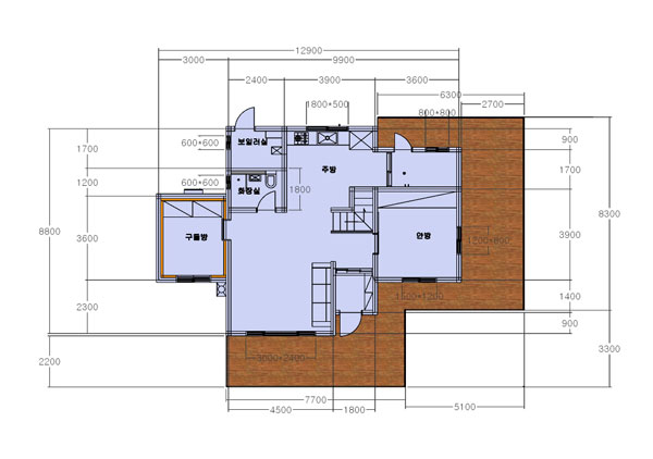
전통 구들 찜질방이 있는 농가주택
2019-02-01 22:16
작성자 : 관리자
조회 : 3332
첨부파일 : 7개




농가 주택이나 전원주택을 지을때 찜질방을 별도로 짓거나 방하나를 찜질방으로 만들어서 몸이 피곤할때

찜질방에 편안하게 피로를 풀고 싶어하는 건축주들이 많다.

 

 
 
 

찜질방을 만들되 필요시 아궁이에 장작불을 피워서 난방을 하고 평상시에는 일반 보일러가 난방하도록

하는 것 만이들 원합니다. 그래서 보일러도 깔고 전통구들장을 놓고 현대식 보일러도 설치하는 방법으로

도면 설계를 하였습니다.

 

 
 
 

 
 
 

2층은 마을 전망을 볼수 있는 발코니를 설치 하고  겨울에 바람이 많은 지역이라  북쪽벽을 공기층 공간으로 벽을

 디자인 했습니다.





 
 
 
 
 
 
 


입면도

 

 
 
 

 
 
 
 

외벽마감 적벽돌

 
 
 

지붕마감 스페니시 점토기와

 
 
 

내부마감 제일벽지 장폭합지 , 황토벽돌위 한지

 
 
 

풍산 강마루

 
 
 

단열재 벽체 R19

 
 
 

지붕 R30

 
 
 

외단열 은박단열 5mm 감싸기

 
 
 

창호 LG하이샤시 이중창 24mm

 
 
 

현관문 시스템 도어 디지털키

 
 
 

위생기구 계림

 
 
 

난방기구 경동 기름보일러, 장작


 
 
 
 
 
 
 

 
 
 


건축구조
단층, 다락방

 
 
 

건축면적 89제곱미터(27평)

 
 
 

공사기간 3 개월

 
 
 

건축비용 13,000만원

 
 
 

 
 
 

아궁이부분은 준공후 비가림 시설을 하여 비나 눈도 막고 장작도 쌓아놓을수 있도록 파고라 형태로 설치하면 좋아요