효당하우징 집짓기

효당하우징과 함께하면 행복한 건축이 됩니다.

설계

기획

가성비 좋은 목조주택
2020-02-02 14:04
작성자 : 마스터 빌더
조회 : 2588
첨부파일 : 7개

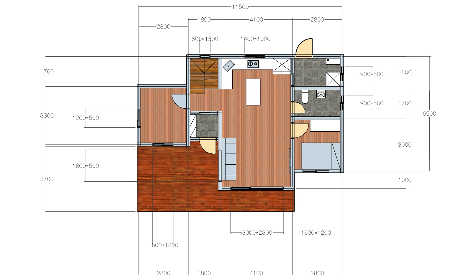
105 제곱미터 목조주택


 

1층  20평

방 2개/  주방겸 거실 / 다용도실 / 화장실/ 계단창고/ 현관 


















2층  12평

2층 방1개 / 드레스룸/ 화장실/  가족실 /  2층 테라스









외관

박공형태 지붕에   아스팔트 2중 그림자 싱글 시공

외벽은  세련된 디자인의 세라믹 사이딩을 투톤으로  시공












대지 공간 활용

건물뒤  대지 공간을 확보하여, 준공후   파고라와 작은 창고를 설치  여름이나 주말에 가족이 야외에서 함께  바베큐를 즐길수  있게 배치를 하였고, 

주변 사람들의 시선을 피할 수 있게  설계 하였습니다.







 


작은 평수를 실속있게 설계 하였으며.   1층 거실 천정을 높이고 창문을  크게 하여  전원을  거실에서 즐길수 있게 시야를 최대로 확보 하였으며,

2층에는 테라스에에서 여름 밤하늘을 즐길며 커피를 마실수 있는 공간과  방과 분리된   가족실에서는 독서나 컴퓨터를 할수 있는 공간을 확보 하였습니다.







구조 -목조/스틸하우스

외장재 - 세라믹 사이딩 + 시멘트 사이딩 

지붕재- 아스팔트 슁글 30녕

창-  하이샤시 이중창 22mm

내부 마감 -  실크벽지

바닥마감 -  강마루 

내부 인테리어 -  천정 인테리어 보 서가래  편백루바 

공사금액 - 1억2천만원