효당하우징 집짓기

효당하우징과 함께하면 행복한 건축이 됩니다.

설계

기획

일억원에 지은 유럽식 기와로 단장한 전원주택
2020-05-02 14:42
작성자 : 마스터 빌더
조회 : 2464
첨부파일 : 7개


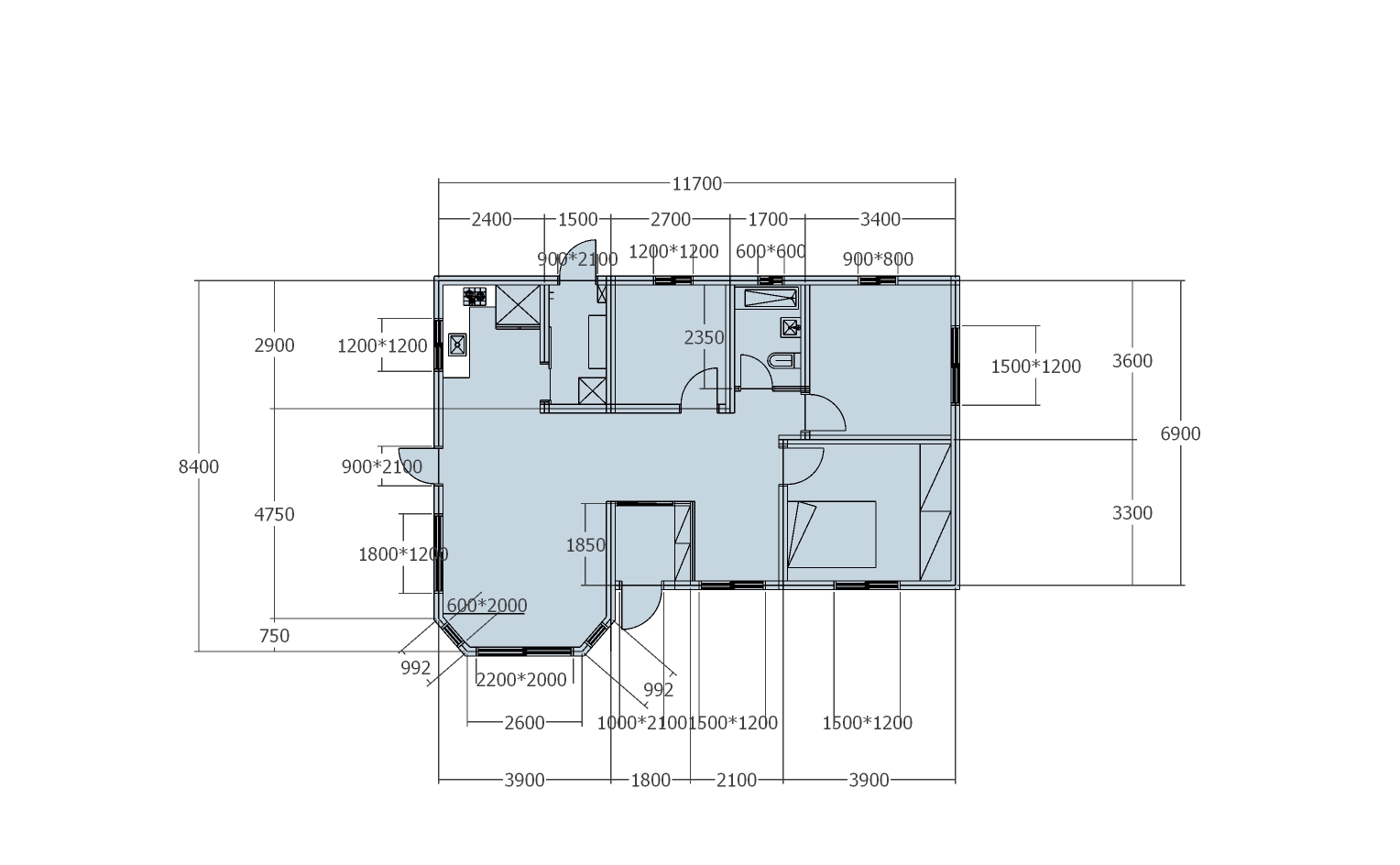
건평 26평
 
구조 : 방3/ 주방/ 거실/ 다용도실/  화장실 /   데크/  파우더룸

지붕마감  유럽점토기와

외벽마감   세라믹 사이딩

창   하이샤시 이중창 22MM  

단열재  천정 R32/  벽 R22

구조   스틸하우스/ 목조주택

타일 도기  국산

바닥재   강마루

도배  장폭 합지 

내부인테리어    거실 원목 300*250  보 /140*90  서가래/  편백루바   

천정 높이  방 2900/ 거실 3900

 


공사 금액  일억원



벽체를 1M 높여서 작은 주택을 크 보이게 설계





방이 3개가 필요한 가정을 위한 주택

거실과 분리된  아이들을 위한 컴퓨터실 공간을 확보






건물 전면에 넓은 데크와  3면에 이동이 편리하게  데크를 설치







마당에는 잔디를 심고, 소나무와 진달래를 심어서  정원을 꾸미고 ,  주차장은   정원보다  낮게 하여 

건물이 더욱 돋보이게 하였으며,  거실의 높은 천정은 개방감을 주어  내부가 좁다는 느낌이 전혀 들지 않습니다.






공사비 대비 훌륭한 주택이 완성 되었습니다.