효당하우징 집짓기

효당하우징과 함께하면 행복한 건축이 됩니다.

설계

기획

30py 모던 스타일 전원주택
2020-07-03 14:11
작성자 : 마스터 빌더
조회 : 2266
첨부파일 : 8개

 

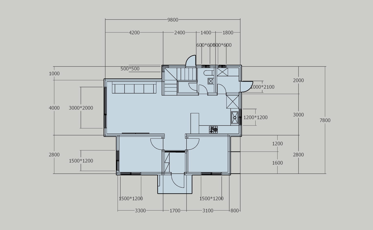
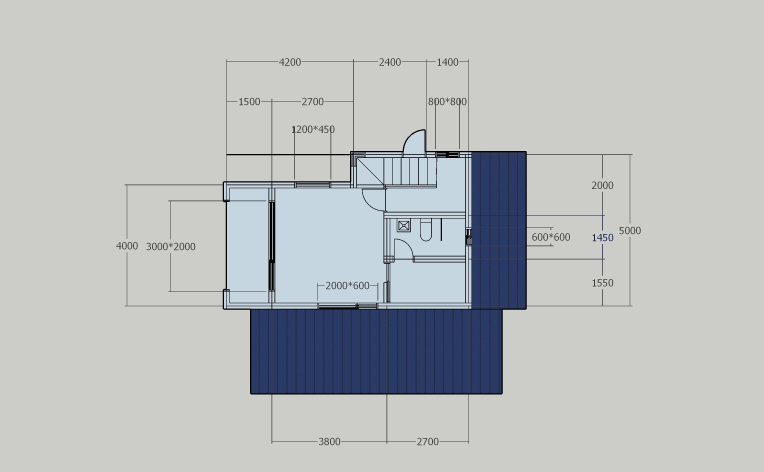
건평 30평
1층 20평 2층 10평
건축 유형  목조주택/ 스틸하우스/ 철근 콘크리트
외장재
외벽- 세라믹 사이딩+ 스타코 마감
지붕- 징크
데크- 석재마감
내부 마감재
벽- 실크벽지
바닥- 강마루
도기/ 변기 - 국산
도어- 국산
창- 미국식 시스템 3중창 
신발장+싱크대- 국내제조

건축비 1억2천만원 (별도비용-인허가/ 공과금/ 상하수도 신청비/ 전기신청비 /정화조 설치) 


1층 평면도


2층 평면도


입면도